Leave a Message

Thank you for your message. I will be in touch with you shortly.

Explore Our Properties

Property Description

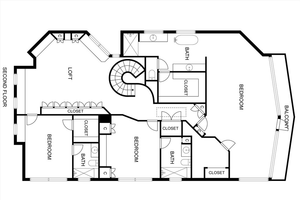
This oceanfront home captures the California Dream on Dana Point's guard-gated Beach Road. Approximately 3,059 square feet, this modern-day three-bedroom, four bath residence beachside home amplifies the beauty of its location with floor-to-ceiling windows and French doors in both the living and dining rooms that capture the famous Dana Point sunset views, Pacific Ocean whitewater, Dana Point headlands, and Catalina Island. The living room opens to a Trex-finished deck, with over 4,000 square feet continuing to the tide line on the sand while adding a touch of private beach utopia. The main level of the home also features a fireplace with onyx surround, a two-car garage, and a high-end kitchen with stone countertops, an island, a pantry, a breakfast bar, built-in Sub-Zero refrigerator, plus an additional Sub-Zero refrigerator and freezer drawers, two dishwashers, and a double convection oven and microwave. A spiral staircase takes residents and guests upstairs, where a large bonus room showcases a fireplace, a built-in entertainment center, and a built-in desk. Two ensuite guest rooms are featured, and the magnificent primary suite welcomes two walk-in closets, a fireplace, and gorgeous ocean and coastline views from the interior and deck. The spa-inspired bath includes heated marble floors, a stand-alone spa tub, and a separate shower. All four baths in the home are remodeled as of 2019 and host backlit LED mirrors, Walker Zanger tile, and polished Antolini stone. Other features that enhance the home's style and value include an exterior shower, a Sunbrella retractable awning, and Lutron motorized shade. Numerous recreational activities, such as Dana Point's famous harbor, the coastal towns of Laguna Beach and San Clemente, and shopping and dining opportunities are just minutes away.

Overview

Property Status
Sold
Lot Size
4,100 Sq.Ft.
MLS ID
AR23053663
Property Type
Residential
Year Built
1972

Features & Amenities

Neighborhood
Orange County
Architecture Styles
Custom
Water Frontage
Beach Access, Beach Front, Ocean Access, Ocean Front, Ocean Side Of Freeway
View Description
Ocean
Stories
2
Garage Spaces
2.0
Water Source
Public
Pool
None
Lot Features
Rectangular Lot, Rocks, Street Level
Parking
Direct Access, Driveway, Garage, Garage Door Opener, Paved, Storage
Heat Type
Central
Air Conditioning
None
Laundry Room
Inside, Laundry Closet, Upper Level
Fireplace
Living Room, Primary Bedroom
Appliances
6 Burner Stove, Convection Oven, Electric Oven, Gas Oven, Ice Maker, Refrigerator
Other Interior Features
Ceiling Fan(s), Living Room Deck Attached, Stone Counters, Recessed Lighting
Sewer
Unknown
HOA Amenities
Guard
Security Features
Gated with Guard, Gated Community, Gated with Attendant, 24 Hour Security
Other Exterior Features
Awning(s)
School District
Capistrano Unified
Sales Price
$5,250,000
HOA
$90/mo

Downloads

35781 Beach Road

Schedule a Tour

I would love to help you see this beautiful home! As a full-service brokerage, I can help you tour. Please submit an offer, and answer questions about the buying process.

Thank you

for your interest in 35781 Beach Road, Dana Point, CA 92624

35781 Beach Road
Navigate
Orange County

Explore Orange County

read more

I'm Interested In

35781 Beach Road

or
  • CallJonathan Rodriguez

    License # 02060068

    (626) 722-1522
  • Follow Us On Instagram